物件の種類 賃貸
地域 藤沢市鵠沼藤が谷4丁目
価格 ―
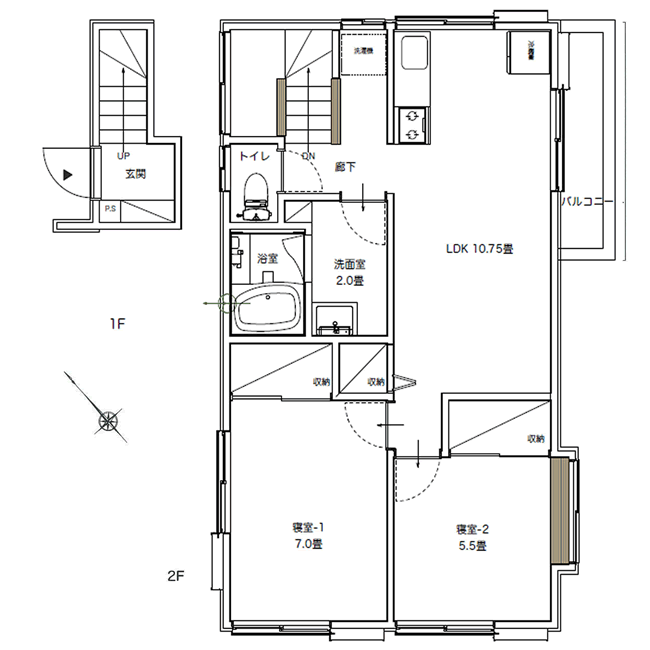
広さ 52.17㎡
周囲は緑あふれる鵠沼。江ノ電そば。鵠沼海岸まで1.5キロの立地です。現在工事中のため室内外観ともに画像が未だです。
この物件は終了しました
新築物件ではありませんが、リノベーションしたテラスハウス。室内・外観ともに築年を数えた物件の趣はありません。2019年リノベの施行を担当したのは、湘南の住宅作りの名匠「ZEN建築事務所」ということ。これまでこの湘南隠れ家不動産でも物件をご紹介してきましたがとっても人気のある建築物を作っています。なお猫ちゃん共生OKのテラスハウスです(その場合、敷金が+1カ月)。
高台の2階部分2LDKの空間は平屋感覚で住むことができそう。周囲は緑あふれる鵠沼の閑静な住宅地。お部屋の窓からは室内の南側の窓から江の島の花火、西側の窓からは富士山が見えます。生活の便利さ、閑静な住環境ととてもお薦めのエリアです。おウチから鵠沼海岸まで約1.5キロ、江ノ島まで約3キロとジョギングや散歩にもちょうどいい距離感。最寄り駅は江ノ電「柳小路」ですが、「鵠沼」駅も徒歩4分の距離です。また付近の方々は通勤などで藤沢駅まで歩いているようです。自転車置き場有り。サイクルエクスカーションも楽しみです。
<編集スタッフより>オーナーさん宅も愛猫家。※室内画像はリフォーム完成時のもの。
リビングダイニング。床材はペットの足に優しい素材を採用。
東側の居室。和の雰囲気を醸す。
西側の居室。
キッチン。
左:建物外観 中:玄関 右:バルコニー
左:玄関収納 中:階段を下から 右:2階から階下
浴室、洗面。
鵠沼の静かな住宅地に存しています。最寄駅は江ノ電「柳小路」。藤沢駅も歩いて16分。
鵠沼の海まで約1.5キロ。この景色は壮観です。ペットとの散歩にもお薦め
| 所在地 |
藤沢市鵠沼藤が谷4丁目 |
賃料 |
― |
| 間取り |
2LDK |
専有面積 |
52.17㎡ |
| 最寄り駅 |
江ノ島電鉄線「柳小路」駅 |
駅からの距離
(徒歩) |
4分 |
駅からの距離
(バス) |
|
駐車場の有無 |
無し |
| 管理費 |
ナシ |
建物の構造 |
木造 |
| 建物の階数 |
2階建て |
現況 |
空室 |
| 敷金 |
1か月(猫飼育の場合は+1か月) |
礼金 |
1か月 |
| 引き渡し時期 |
相談 |
取引態様 |
仲介 |
| お問い合わせ先 |
 物件担当 kokochie町田 |
| 設備 |
公営水道、都市ガス、本下水、自転車置き場有り、エアコン1台設置 |
| 備考 |
火災保険必須。 保証会社利用必。室内禁煙、カギ交換費用有り JR東海道線藤沢駅まで徒歩なら約16分。江ノ電「鵠沼」駅から徒歩6分です。 |